Низкорамный полуприцеп - возможность аренды Goldhofer 4-Achs-Tele-Semi mit hydr. Doppelklapprampen
Опубликовано: 27д.
Опубликовано: 27д.
Лизинг
Доступно по запросуZu jedem gebrauchten Auflieger erhalten Sie einen aktuellen & vollständigen Inspektions- und Funktionsbericht.
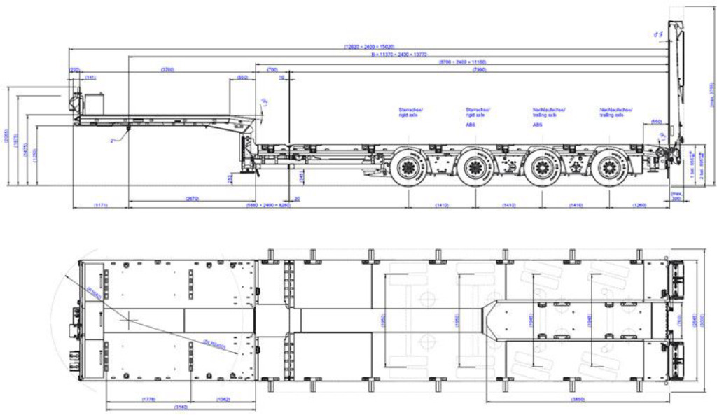
Schwanenhals, starr, in Mittelröhren-Ausführung:
-Geschlossener Außenrahmen mit Ausschnitte für Spanngurte (LC 1.500 daN)
-Bodenbelag Stahl mit Antirutschbelag
-inklusive Lochleiste für Alu-Anlegerampen
-2" – Königszapfen
-Mechanisch betätigte BPW-Sattelstützen
-550 mm lange, 8’ Anschrägung am Schwanenhalsende
-Stirnwand inkl. Parkposition für Rückwand, 400 mm hoch
-Ersatzradhalter stehend an der Vorderseite des Schwanenhalses montiert
-3 Paar Zurrringe LC 5.000 daN versenkt in der Ladefläche des Schwanenhalses
-Aluminium-Steckbordwände 400 mm hoch, bestehend aus 2x Bordwand seitlich Länge 3.150 mm und Rückbordwand mit Rungen (verzinkt)
-Staukasten rechteckig, Aluminium, Klappdeckel, abschließbar Maße ca. 400 x 800 mm, Mitte
-Staukasten 45’, Aluminium, Klappdeckel, abschließbar Maße ca. 400 x 800 mm, links
-Staukasten 45’, Aluminium, Klappdeckel, abschließbar Maße ca. 400 x 800 mm, rechts
Ladefläche, einfach teleskopierbar:
-Geschlossener Außenrahmen mit Ausschnitten für Spanngurte (LC 1.500 daN)
-Festes Teil vorne 700 mm
-Bodenbelag Blech mit Antirutschbelag
-Angeschrägte Schnittstelle zwischen Festteil und Ladefläche zum Einhängen von Überbrückungsschienen und Radmulden
-Baggermulde inkl. Langlöcher zur Ladungssicherung (LC 1.500 daN), Länge ca. 3.850 mm
-Vorbereitung für hydraulische Rampe (Elektroversorgung)
-Holme zur Verbreiterung auf 3.000 mm
-angeschrägtes Fahrzeugheck 8°, 550 mm lang
-Schlittenausführung für einfachen An- und Abbau von Rampen
-Durchgehender Schmutzfänger am Heck
-1 Paar Zurrpunkt LC 10.000 daN mittig auf der Ladefläche hinter dem Schwanenhals
-7 Paar Zurrpunkt LC 10.000 daN im Außenrahmen der Ladefläche
-6 Paar Rungentasche 100 x 50 mm im Außenrahmen der Ladefläche
-1 Paar Zurrpunkt LC 10.000 daN mittig im Heckbereich der Ladefläche
-1 Paar Rungentaschenleisten ca. in der Mitte der Ladefläche
-1 Paar Rungentaschenleisten auf dem Festteil
-1 Paar Rungentaschenleisten hinter der letzten Achse
Rampen:
-Hydraulische Doppelklapprampen, 2.750+1.500x800 mm
-Holzbelag Lärche
-Ansteuerung über Fernbedienung (über Kabel und Funk möglich)
-Rampen mit Schnellwechsel-(Demontagesystem)
Fahrwerk:
-Achsfabrikat BPW ECO Max
-2 Fahrhöhen
-4 Achsen á 10 t (technisch 12 t)
-Zwillingsbereifung 245/70 R17.5
-2 x Starrachse und 2 x reibungsgelenkte Achse
-Rückfahrlenksperre der reibungsgelenkten Achse über Rückwärtsgang
-Bremsanlage Fabrikat Knorr (gemäß EU-Vorschriften mit EBS-E)
-TIM G2 von Knorr (TrailerlnformationModul)
-Fahrstabilitätsregelung RSS (Roll Stability Support)
-lastabhängige Liftachse auf der ersten Achse inkl. Anfahrhilfe (Zwangsabsenkung der Liftachse über TIM möglich)
Zubehör:
-4 Unterlegkeile mit Halter
-2 Paar Warntafeln 423 mm x 423 mm, mit 2 Positionsleuchten und Steckposition für Rundumleuchte, stufenlos verstellbar bis 3.950 mm
-Befestigungsmöglichkeiten am Schwanenhals und auf der Ladefläche (alternativ an der Rampe, falls vorhanden) sind inklusive
-steckbares Schottblech am Ende der Baggermulde
-Elektro-Hydraulik Aggregat zur Rampenbedienung
-Bedienung der Rampen per Funk-Fernbedienung
-Hydraulische Entlastungsstützen am Fahrzeugheck zum Abstützen beim Beladevorgang
-1 Paar zusätzliche Rückfahrscheinwerfer Heck auf Rückwärtsgang geschaltet
-Holz-Verbreiterungsbohlen - Lärche (Option)
Это предложение носит исключительно информационный характер. Пожалуйста, подтвердите детали непосредственно у продавца.
Выбрав транспортное средство, которое вас интересует на Truck1.eu, вы можете связаться с продавцом, используя контактную форму или позвонив напрямую по предоставленному номеру. Выберите способ, который вам удобнее.
Обратитесь к продавцу, чтобы узнать больше о наличии транспортного средства, его техническом состоянии и актуальной цене, так как объявления не всегда содержат полные сведения. Запросите последние сервисные записи или отчеты об осмотре, чтобы лучше понять текущее состояние транспортного средства.
Воспользуйтесь функцией сравнения на Truck1, чтобы оценить аналогичные транспортные средства. Это поможет определить, конкурентоспособна ли цена и соответствует ли она рыночным трендам. Обратите внимание на закономерности в ценах и характеристиках для принятия обоснованного решения.
При покупке транспортного средства онлайн важно убедиться в надежности продавца. Ищите положительные отзывы и успешные сделки. Используйте иконки "Статус дилера" на Truck1, чтобы получить информацию о репутации продавца.
Если это возможно, постарайтесь лично посетить продавца для осмотра транспортного средства. Также рекомендуется организовать независимую проверку перед покупкой, чтобы выявить возможные проблемы, которые могут быть не видны на фотографиях или не указаны в объявлении.
Подпишите подробный договор купли-продажи, чтобы защитить свои права и подтвердить условия сделки.
Оплачивайте только после подписания договора купли-продажи. Сделать небольшой залог для бронирования транспортного средства — это обычная практика, но действуйте осторожно.
Убедитесь, что продавец надежный. Соберите о нём как можно больше информации: почитайте отзывы, посмотрите рейтинги предыдущих покупателей. На сайте Truck1 ищите значки проверенных продавцов — это сделает вашу покупку безопаснее.
Воспользуйтесь инструментом для сравнения цен на похожие транспортные средства. Если цена сильно отличается от рыночной, это может говорить о каких-то проблемах или о мошенничестве.
Задавайте продавцу все интересующие вас вопросы о прошлом транспортного средства и его эксплуатации. Добросовестный продавец всегда готов поделиться всей необходимой информацией.
Организуйте осмотр и тест-драйв, обратите внимание на любые следы износа и повреждений. Стоит подумать о привлечении профессионального механика для проведения предпродажной проверки, чтобы выявить все скрытые проблемы.
Прежде чем совершить покупку, убедитесь, что у вас есть подробный договор купли-продажи, в котором прописаны все условия. Используйте безопасные методы оплаты и тщательно проверяйте детали транзакции, чтобы защитить себя от мошенничества.
Лизинг
Доступно по запросу
Это предложение носит исключительно информационный характер. Пожалуйста, подтвердите детали непосредственно у продавца.
Выбрав транспортное средство, которое вас интересует на Truck1.eu, вы можете связаться с продавцом, используя контактную форму или позвонив напрямую по предоставленному номеру. Выберите способ, который вам удобнее.
Обратитесь к продавцу, чтобы узнать больше о наличии транспортного средства, его техническом состоянии и актуальной цене, так как объявления не всегда содержат полные сведения. Запросите последние сервисные записи или отчеты об осмотре, чтобы лучше понять текущее состояние транспортного средства.
Воспользуйтесь функцией сравнения на Truck1, чтобы оценить аналогичные транспортные средства. Это поможет определить, конкурентоспособна ли цена и соответствует ли она рыночным трендам. Обратите внимание на закономерности в ценах и характеристиках для принятия обоснованного решения.
При покупке транспортного средства онлайн важно убедиться в надежности продавца. Ищите положительные отзывы и успешные сделки. Используйте иконки "Статус дилера" на Truck1, чтобы получить информацию о репутации продавца.
Если это возможно, постарайтесь лично посетить продавца для осмотра транспортного средства. Также рекомендуется организовать независимую проверку перед покупкой, чтобы выявить возможные проблемы, которые могут быть не видны на фотографиях или не указаны в объявлении.
Подпишите подробный договор купли-продажи, чтобы защитить свои права и подтвердить условия сделки.
Оплачивайте только после подписания договора купли-продажи. Сделать небольшой залог для бронирования транспортного средства — это обычная практика, но действуйте осторожно.
Убедитесь, что продавец надежный. Соберите о нём как можно больше информации: почитайте отзывы, посмотрите рейтинги предыдущих покупателей. На сайте Truck1 ищите значки проверенных продавцов — это сделает вашу покупку безопаснее.
Воспользуйтесь инструментом для сравнения цен на похожие транспортные средства. Если цена сильно отличается от рыночной, это может говорить о каких-то проблемах или о мошенничестве.
Задавайте продавцу все интересующие вас вопросы о прошлом транспортного средства и его эксплуатации. Добросовестный продавец всегда готов поделиться всей необходимой информацией.
Организуйте осмотр и тест-драйв, обратите внимание на любые следы износа и повреждений. Стоит подумать о привлечении профессионального механика для проведения предпродажной проверки, чтобы выявить все скрытые проблемы.
Прежде чем совершить покупку, убедитесь, что у вас есть подробный договор купли-продажи, в котором прописаны все условия. Используйте безопасные методы оплаты и тщательно проверяйте детали транзакции, чтобы защитить себя от мошенничества.




















